string(4) "2952"

Котел на древесных отходах 400 кВт в Салехарде

Версия
для печати
В наличии на складе Цена в рублях с НДС 564 000
Получите скидку
у менеджера
Цена на котел на древесных отходах 400 кВт с доставкой от 564 000 рублей с НДС
Вид топкиРучная, Подовая
Максимальная тепловая мощность, кВт400
ТопливоТвердое, Дрова, Древесные отходы естественной влажности
Отапливаемая площадь, м²3000-4300
Доставка ТК в г. Салехард и по России
Безналичный расчет
Подобрать котел по мощности
Опросный лист
  • Технические
    характеристики
  • Описание
    товара
  • Комплект
    поставки
  • Дополнительно
    потребуется
  • Подключение и
    монтаж
  • Сертификаты и
    гарантии
  • Отзывы о
    продукции
  • Видео
    обзор
  • Подбор
    котла

Ручной водогрейный котел HEATEXPERT с подовой топкой для работы на отходах деревопереработки естественной влажности и различной фракции – от щепы до бревен

Технические характеристики котла на древесных отходах 400 кВт

Тип Котел КВ Д ПТ
Тип отопительного котла Твердотопливный
Бренд HeatExpert
Марка Котел КВ Д 400
Вид топки Ручная, Подовая
Максимальная тепловая мощность, МВт 0.4
Максимальная тепловая мощность, кВт 400
Максимальная тепловая мощность, Гкал 0.34
Диапазон регулирования мощности, % 50-100
Топливо Твердое, Дрова, Древесные отходы естественной влажности
Низшая теплота сгорания проектного топлива, кКал/кг 2440
Влажность топлива, % 40
КПД котла на ДРОВАХ, не менее, % 80
Расход ДРОВ среднечасовой за отопительный сезон, кг/ч 98.3
Расход ДРОВ среднечасовой за отопительный сезон, м³/ч 0.20
Расход ДРОВ при максимальной нагрузке котла, кг/ч 172
Расход ДРОВ при максимальной нагрузке котла, м³/ч 0.36
Расход условного топлива, кг/ч 60
Минимальная температура воды на входе в котел, °C 55
Максимальная температура воды на выходе из котла, °C 115
Давление воды, не более, МПа (кгс/см²) 0.3-0.6 (3-6)
Номинальный расход теплоносителя, м³/ч 14
Расход теплоносителя через котел min-max, м³/ч 10-17
Гидравлическое сопротивление при номинальном расходе, МПа (кгс/cм²) не более 0.07 (0.7)
Аэродинамическое сопротивление, Па (мм. вод. ст.) 56 (5,6)
Разряжение в топочной камере, Па (мм. вод. ст.) 20-40 (2-4)
Объем уходящих газов, м³/ч 1920
Температура уходящих газов, не более, °С 220
Тяга Уравновешенная
Водяной объем котла, л 350
Объем топочной камеры, м³ 1.05
Размер топочной камеры, длина*ширина*высота, мм 1065х660х1500
Активная площадь решетки горения, м² 0.7
Присоединительные размеры по водяному тракту, Ду 65
Присоединительные размеры газохода уходящих газов, ширина*высота / сечение, мм/м² 390х200 / 0.08
Габаритные размеры котла, длина*ширина*высота, мм 2100х1300х2100
Масса, кг 2100
Вид Водогрейный
Конструкция котла трубная
Количество контуров Одноконтурный
Размещение Напольный
Тип камеры сгорания Открытый
Управление Электронное
Принцип работы твердотопливного котла Классический
Энергонезависимый Нет
Тип питания Трехфазное
Встроенный циркуляционный насос Нет
Встроенный расширительный бак Нет
Энергоэффективность Высокая
Отапливаемая площадь, м² от 3000 до 4300
Отапливаемый объем, м³ от 9000 до 13000

Котел 400 кВт на древесине и древесных отходах естественной влажности в Салехарде

Надежный и эффективный промышленный котел на древесных отходах 400 мощностью 400 кВт, предназначен для стабильного отопления, горячего водоснабжения и вентиляции производственных, коммерческих и жилищно-коммунальных объектов площадью до 4300 м², температурой теплоносителя на выходе 95 - 115 °С, рабочим давлением 0,3 - 0,6 кгс/см (3,0 - 6,0) МПа.

Благодаря большому объему топочной камеры с огнеупорным поясом сушки древесины, котел 400 кВт может применяться для сжигания влажного горбыля, бревен, в нем можно утилизировать поддоны, паллеты, доски, отходы мебельного производства, предприятий деревообработки, лесопиления, пилорам и ДСП. В топку можно загружать в небольших объемах сырые, влажные опилки и щепу. Получая тепло на отопление производственных цехов, вы решаете проблему утилизации отходов лесопиления.

Особенности конструкции промышленного, водогрейного котла 400 кВт на древесине и древесных отходах естественной влажности:

  • подовая топка с поясом зажигания из огнеупорного кирпича для подсушивания древесины естественной влажности;
  • система подачи воздуха в под топки для сушки и интенсификации процесса горения крупных и мелких фракций сырого и влажного топлива;
  • габаритные размеры топки, для единовременной загрузки большого объема низкокалорийных древесных отходов лесопиления;
  • поворотная камера на выходе из топки, работающая как зона догорания легких и мелких топливных частиц, захватываемых потоком уходящих газов;
  • развитые поверхности нагрева для получения высокого КПД и снижения температуры уходящих газов;
  • котел работает с ручной загрузкой топлива. Если вам необходима механическая загрузка твердого топлива, можем предложить вам автоматическую установку для сжигания древесного топлива.

Сфера применения котлов HeatExpert на древесном топливе

Промышленный твердотопливный котел 400 кВт на древесине применяется для автономного отопления, ГВС и вентиляции различных объектов:

  • цехов, складов, ангаров, производственных баз, гаражей, административных зданий, автосервисов, станций СТО, сушильных камер, мебельных производств, лесоперерабатывающих предприятий, домостроительных комбинатов.
  • теплиц, ферм, птицефабрик, зерносушильных комплексов.
  • больниц, школ, детских садов, санаториев, клубов, административных зданий, магазинов.
  • устанавливается в блочно-модульных и стационарных отопительных котельных для отопления жилых кварталов.

Устройство и принцип работы котла 400 кВт на отходах деревообработки

Отопительный водогрейный котел 400 кВт для сжигания древесных отходов — это стальной, стационарный, водотрубный, горизонтальный, напольный агрегат в легкой обмуровке изготавливается из круглой трубы сталь 20. Конструкция состоит из двух основных частей:

1. Топочной камеры: Зона сжигания твердого топлива, усиленная охлаждаемой газоплотной конструкцией для повышения КПД и энергоэффективности.

2. Конвективной части: Двухходовой пучок труб, где дымовые газы, двигаясь по сложному тракту (вниз-вверх), максимально отдают тепло теплоносителю.

Для надежной и безопасной работы предусмотрено:

  • Штуцеры для выпуска воздуха в верхних коллекторах.
  • Дренажные штуцеры в нижних коллекторах для продувки и удаления шлама.
  • Удобные и прочные поворотные короба для направления газов и сбора шлака.
  • Люки для легкой очистки конвективных поверхностей.
  • Предохранительные клапаны.

Регулировка мощности осуществляется просто: оператор изменяет интенсивность горения, управляя загрузкой топлива и регулируя подачу воздуха через шибер дутьевого вентилятора.

Преимущества котла 400 кВт на древесных отходах бренда HeatExpert производства котельный завод «РЭП»

Промышленный котел HeatExpert 400 на отходах ДСП — это результат многолетнего опыта в проектировании надежного промышленного оборудования. Его конструкция продумана до мелочей для обеспечения высокого КПД, долговечности и простоты обслуживания.

1. Топочная камера с газоплотностью

Топочная камера представляет собой систему газоплотных водотрубных экранов. Трубы, по которым течет вода, расположены близко друг к другу, промежутки между ними герметично заварены стальной полосой.

  • Преимущество: Это полностью исключает проникновение дымовых газов в котельный зал и подсосы холодного воздуха в топку, которые резко снижают КПД. Вы получаете безопасное помещение и экономите топливо за счет стабильного режима горения.
  • Надежность: Ширина и метод обварки полосы рассчитаны на стабильное охлаждение теплоносителем, что предотвращает ее прогары и деформацию при длительной интенсивной эксплуатации.

2. Развитая двухходовая конвективная система – основа эффективности

После камеры сгорания дымовые газы не сразу уходят в дымоход, а попадают в высокоэффективную конвективную часть, работающую по принципу экономайзера.

  • Шахматное расположение труб: Трубы в конвективных пакетах установлены в шахматном порядке. Это создает турбулентность потока газов и обеспечивает интенсивный теплосъем.
  • Принцип противотока: Гидравлическая схема котла организована так, что теплоноситель движется навстречу потоку дымовых газов (принцип противотока). Это обеспечивает максимальный перепад температур и глубокое охлаждение газов до 180-1000 °C, что напрямую экономит ваши деньги на топливе, сокращая тепловые потери.
  • Многоходовая циркуляция воды: Внутри котла HeatExpert на дт вода движется по сложному маршруту, задаваемому перегородками в коллекторах. Это решает ключевые проблемы:
    • Исключаются застойные зоны и локальный перегрев труб, ведущий к прогару.
    • Высокая турбулизация потока и отсутствие ламинарного пограничного слоя предотвращает образование накипи на внутренних стенках труб.
    • Обеспечивается равномерный прогрев всей трубной системы, снимая термические напряжения и продлевается ресурс оборудования.

3. Подовая топка для эффективного горения

Промышленный котел 400 кВт на отходах мебельного производства изготавливается с подовой топкой. Подовая топка из огнеупорного кирпича для создания и поддержания высокой температуры в камере. Пояс зажигания, образующийся в топке обеспечивает интенсивное воспламенение, подсушивание топлива, стабильное горение. В результате чего можно сжигать влажное топливо.

Габариты топки позволяют загружать большое количество топлива при одной закладке.

По индивидуальному техническому заданию мы можем произвести установку под вани задачи - с увеличенным объемом дверей, более высокой подовой топкой, дополнительными окнами для удобства обслуживания.

4. Продуманная теплоизоляция и обшивка

Котел 400 кВт на отходах деревообработки и лесопиления имеет съемную облегченную обмуровку на основе плит базальтового волокна (ПТЭ), закрепленных на каркасе и защищенных обшивкой из стального листа.

Преимущество: Такая конструкция минимизирует тепловые потери в окружающую среду, повышая общий КПД котельной установки. Кроме того, она обеспечивает максимальную заводскую готовность – котел поставляется уже утепленным, что значительно ускоряет монтаж.

5. Удобство обслуживания для снижения эксплуатационных расходов

Конструкция предусматривает легкий доступ для чистки и осмотра:

  • Смотровые люки: Расположены в обшивке для быстрой очистки конвективных поверхностей от сажи, а также визуального контроля состояния труб.
  • Зольные бункеры: Бункер под конвективной частью с лазом для легкого удаления золы и шлака.

Надежная конструкция водогрейного котла утилизатора древесных отходов 400 кВт HeatExpert обеспечит срок эксплуатации котла, а ваш объект стабильным и экономичным теплом на протяжении 10 лет.

Принцип работы производственного отопительного котла 400 кВт на древесине:

1. Загрузка: Древесное топливо укладывается на под топки и горит от верхних слоев к нижним. Конструкция топки способствует полному догоранию топлива.

2. Горение: Воздух на горение твердого топлива подается принудительно дутьевым вентилятором. Интенсивность горения регулируется шибером на воздуховоде.

3. Теплообмен: Дымовые газы, отдав лучистое тепло в топке, последовательно проходят две конвективные ступени (двигаясь вниз, а затем вверх), где интенсивно охлаждаются до 200 °С, отдавая тепло воде в трубах.

4. Удаление продуктов сгорания: Отработанные газы выводятся через шибер на задней стенке котла в газоход. Зола и шлак удаляются через загрузочную дверцу и через лючок зольника в конвективной части.

Доставка котлов 400 кВт на древесных отходах осуществляется по всей России и СНГ

Мы осуществляем отгрузку котлов автотранспортом и железнодорожными перевозчиками в любую точку России и стран СНГ. Каждый котел 400 кВт для сжигания отходов надежно упаковывается и крепится для безопасной транспортировки.

Для расчета точной стоимости доставки до вашего города или населенного пункта отправьте нам онлайн-заявку. Наши логисты оперативно подготовят для вас варианты доставки с просчитанной стоимостью и сроками. Вы также можете уточнить любую информацию об условиях покупки котла онлайн, через форму обратной связи.

Как купить котел 400 кВт на древесных отходах (0.4 МВт)

Чтобы купить промышленный водогрейный котел 400 кВт на древесине и получить комплексное решение для вашей котельной, свяжитесь с нами любым удобным способом:

Позвоните в отдел сбыта по телефону:

+8-800-700-17-43

+7 (3852) 29-97-41 (многоканальный)

Напишите в отдел сбыта на электронную почту:

SB@KVZR.RU

Отправьте онлайн-заявку на коммерческое предложение через сайт.

Наши специалисты помогут вам:

  • Подобрать необходимую комплектацию и вспомогательное оборудование (дымосос, насосы, щит управления, золоуловитель).
  • Рассчитать окончательную стоимость котла с учетом доставки до вашего региона.
  • Просчитать индивидуальные доработки под ваши технические условия.

Индивидуальные доработки и производство котлов 400 кВт на древесных отходах HeatExpert

Котельный завод «РЭП» изготавливает котлы 400 кВт на отходах древесины не только по типовым проектам, но и по техническому заданию заказчика.

Мы можем изготовить для вас:

  • Зеркальное исполнение (расположение штуцеров и патрубков с противоположной стороны).
  • Изготовление опускных газоходов.
  • Установку дополнительных топочных дверок для удобства обслуживания.
  • По спец заказу изготовление котла 400 кВт работающего на дереве и древесном топливе из цельнотянутой бесшовной трубы ГОСТ 8732 (34).
  • И другие изменения под особенности вашей котельной.

Комплект поставки котла на древесных отходах 400 кВт

Цена водогрейного котла на древесных отходах 400 кВт в Салехарде включает в себя котельный блок в изоляции, топочное устройство для влажного топлива, вентили, затворы, манометры, термометры, вентилятор поддува и предохранительные клапаны. Ниже приведена подробная информация.

Дополнительное вспомогательное оборудование для работы котла на древесных отходах 400 кВт

Для эффективной и надежной работы котла на древесных отходах 400 кВт в вашей котельной вам потребуется дополнительное оборудование - автоматика ЩУК, дымосос, насос сетевой и подпиточный, золоуловитель (по желанию), газоходы и переходники для газового тракта, дымовая труба. Мы предлагаем рассмотреть типовые варианты комплектации.

В случае если у вас на объекте уже имеется насосное и тягодутьевое оборудование, мы можем проверить совместимость котла на древесных отходах 400 кВт нашего производства и вашего оборудования.

Можем изготовить нестандартные узлы для выполнения быстрого монтажа котла - газоходы и узлы обвязки.

Типовую схему монтажа котла вы можете посмотреть во вкладке схемы подключения и монтаж.

Щит водогрейного котла обеспечивает:

  • ручной пуск котла;
  • ручное управление дутьевым вентилятором, дымососом и насосом;
  • автоматическое поддержание температуры путем управления вентилятором, подающим воздух для горения.

Щит водогрейного котла показывает:

  • температуру воды на выходе из котла;
  • температуру воды на входе в котел.

Щит водогрейного котла автоматическую остановку с индикацией причины аварии при:

  • понижении расхода теплоносителя через котел;
  • понижении и повышении давления на выходе из котла;
  • повышении температуры воды на выходе из котла;
  • понижении разряжения в топке котла.

Элементы для управления вентилятором устанавливаются в щите управления котлом.

Элементы управления дымососом и насосом устанавливаются в электросиловом щите котельной.

Цена 185 000 рублей с НДС

Автоматика водогрейного котла обеспечивает:

  • ручной пуск котла;
  • ручное управление дутьевым вентилятором, дымососом и насосом;
  • автоматическое поддержание температуры путем управления вентилятором, подающим воздух для горения.

Автоматика водогрейного котла показывает:

  • температуру воды на выходе из котла;
  • температуру воды на входе в котел;
  • температуру дымовых газов на выходе из котла.

Автоматика водогрейного котла осуществляет автоматическую остановку с индикацией причины аварии при:

  • понижении расхода теплоносителя через котел;
  • понижении и повышении давления на выходе из котла;
  • повышении температуры воды на выходе из котла;
  • понижении разряжения в топке котла;
  • повышении температуры дымовых газов на выходе из котла;
  • понижении температуры дымовых газов на выходе из котла (остывание топки/затухание горения);
  • аварийном останове вентилятора и (или) дымососа;
  • исчезновении напряжения в цепях защиты.

Элементы для управления вентилятора и дымососом устанавливаются в блоке управления котлом.

Элементы управления насосом устанавливаются в общекотельном щите.

Цена 220 000 рублей с НДС

Используется в качестве сетевого насоса в промышленных отопительных котельных

Цена 52 900 рублей с НДС

Используется в качестве подпиточного насоса в промышленных отопительных котельных

Цена 44 600 рублей с НДС

Используется в качестве сетевого насоса в промышленных отопительных котельных

Цена 124 000 рублей с НДС

Дымосос для удаления дымовых газов из котла.

Цена 55 900 рублей с НДС

Производим газоходы по индивидуальному заказу согласно схеме компоновки котельной. Системы газоходов могут включать в себя:

  • шиберы;
  • газоходы различного сечения;
  • переходы;
  • тройники;
  • карманы всасывающие дымососов.

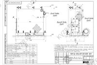
Схемы подключения и монтаж котла на древесных отходах 400 кВт

Водогрейный твердотопливный стальной отопительный котел на древесных отходах 400 кВт, предназначен для получения горячей воды номинальной температурой на выходе из котла от 95 до 115 °С рабочим давлением до 0,6 (6,0) МПа (кгс/см), используемой в системах централизованного теплоснабжения на нужды отопления, горячего водоснабжения. Устанавливается в производственных, промышленных и отопительных котельных.

Схема подключения и монтажа водогрейного промышленного котла на древесных отходах 400 кВт
Смотреть
Скачать

Схема подключения и монтажа котла на древесных отходах 400 кВт

Монтаж водогрейного котла на древесных отходах 400 кВт и вспомогательного оборудования в котельной должно производиться в соответствии с проектом и учетом требований СП 89.13330. 2016 «Котельные установки. Актуализированная редакция СНиП II-35-76» и «Правил устройства и безопасной эксплуатации паровых котлов с давлением пара не более 0,07 МПа (0,7 кгс/см2), водогрейных котлов и водоподогревателей с температурой нагрева воды не выше 388 К (115 С). Правильный монтаж котла – залог его надежной и долгой работы.

Чтобы правильно подключить котел на древесных отходах 400 кВт в котельной необходимо оставить проемы для обслуживания оборудования во время эксплуатации. На представленной здесь схеме указаны их минимальные размеры. Кроме того, в данной примерной схеме монтажа водогрейных котлов и оборудования указан перечень минимально необходимого вспомогательного оборудования для правильной работы котла.

К вспомогательному оборудованию при подключении промышленного водогрейного котла на дровах относят - щит управления котлом, насос циркуляционный, насос подпиточной воды, бак запаса воды, расширительный мембранный бак, дымовую трубу, систему газоходов и дымосос, золоуловитель (по желанию).

В случае если подпиточная вода не соответствует по своим характеристикам требованиям к питательной воде, необходимо предусмотреть систему водоподготовки котловой воды.

Для котельных 1 категории, являющиеся единственным источником тепла системы теплоснабжения и обеспечивающие потребителей первой категории, не имеющих индивидуальных резервных источников тепла, необходимо предусмотреть полное резервирование оборудования – подключение 2 (двух) котлов, насосов, ТДМ. Пунктиром обозначено оборудование для резервирования.

Для котельных 2 категории, включающие в себя промышленные и производственные котельные резервирование нужно предусматривать по необходимости.

Аэродинамическая схема котла котла на древесных отходах 400 кВт
Смотреть
Скачать

Аэродинамическая схема котла на древесных отходах 400 кВт на дровах

Воздух в водогрейный котел на древесных отходах 400 кВт подается вентилятором поддува через топочный короб под слой древесного топлива для обеспечения горения. На боковой панели топки котла имеется пробоотборочный штуцер для подключения манометра и тягонапорометра.
Автоматика котла по данным тягонапорометра производит контроль разряжения в топочной камере, блокируя работу вентилятора в случае снижения разряжения в топочной камере, и исключая выбивание дымовых газов из топки в котельный зал. Из топки дымовые газы поступают в первый конвективный пакет, разворачиваются в поворотном коробе и через второй конвективный пакет выходят в газоходы котельной.
Для ручной регулировки тяги и дутья и режимов горения древесного топлива в комплекте котла предусмотрены шиберы. Шибер на воздуховоде подачи в топочный короб регулирует количество воздуха подаваемого вентилятором. Шибер на выходе из котла позволяет произвести отключение котла от общей магистрали газоходов котельной, а также регулировку тяги создаваемой дымососом.

Схема котла на древесных отходах 400 кВт без золоуловителя
Смотреть
Скачать

Схема подключения котла на древесных отходах 400 кВт без золоуловителя

При работе котла на древесных отходах 400 кВт на древесном топливе дополнительная очистка дымовых газов с помощью золоуловителей не нужна. Схема подключения при этом следующая - дымовые газы выходят из котла в газоходы котельной, затем в дымосос и далее снова по газоходам в дымовую трубу. В зависимости от компоновки котельной дымосос может устанавливаться как в котельной, так и на улице. Наш завод производит газоходы и переходники к ним. Получив схему вашей котельной мы можем изготовить для вас комплект газоходов, переходников нужных размеров и сечений. На месте такие детали собираются как конструктор. Обращаем ваше внимание, что газоходы требуют изоляции, для защиты персонала от ожогов, так как уходящие газы имеют высокую температуру, а на улице газоходы требуют изоляции для избежания образования конденсата.

Схема подключения котла с золоуловителем
Смотреть
Скачать

Схема подключения котла с золоуловителем

Золоуловитель для промышленного дровяного котла на древесных отходах 400 кВт обычно требуется устанавливать в котельных расположенных в жилой зоне и по требованию надзорных органов. Они позволяют произвести дополнительную очистку дымовых газов перед их выбросом в атмосферу. Золоуловители нашего завода могут устанавливаться как сразу за котлом, так и снаружи котельной. Кроме очистки воздуха золоуловители увеличивают сопротивление в газовом тракте, поэтому при их установке требуется дымосос большей мощности.

Схема тепловая котла
Смотреть
Скачать

Тепловая схема подключения

Образец тепловой схемы подключения дровяного котла на древесных отходах 400 кВт и вспомогательного оборудования в котельной приведен на данной схеме. При эксплуатации очень важно грамотно осуществить подключение оборудования, установить все контрольно измерительные приборы, для контроля параметров работы котельной и запорную арматуру для оперативного переключения потока теплоносителя при плановой или аварийной остановке оборудования. Данную схему можно использовать как пример для разработки под свой объект или заказать у нас разработку индивидуальной схемы для вашей котельной.

Установка контрольно-измерительных приборов
Смотреть
Скачать

Установка контрольно-измерительных и предохранительных приборов котла на древесных отходах 400 кВт

При монтаже котла на древесных отходах 400 кВт на участке водоподводящего трубопровода после задвижки, непосредственно перед входом во входной и на выходном трубопроводах устанавливаются по одному манометру и термометру. На входе или выходе из котла устанавливается устройство контроля расхода теплоносителя (реле протока). Кроме того, на выходном трубопроводе устанавливаются не менее двух предохранительных клапанов - один рабочий, второй резервный.
Все приборы, кроме реле протока входят в комплектацию котла. Реле протока входит в комплектацию щита управления данного котла, щит покупается отдельно.

Дополнительные услуги

Сертификат и качество котла на древесных отходах 400 кВт

Водогрейные котлы производства Котельный завод "РЭП" соответствуют строгим стандартам качества и безопасности. Завод производит котлы в соответствии с требованиями ГОСТ 30735-3001 по Техническим Условиям завода.

Котлы имеют сертификаты соответствия Техническим регламентам Таможенного союза:

  • ТР ТС 010/2011 «О безопасности машин и оборудования».
  • ТР ТС 032/2013 - «О безопасности оборудования, работающего под избыточным давлением».
Сертификат на водогрейные котлы .jpg
Сертификат на водогрейные котлы
Знак товарный на водогрейные котлы HEATEXPERT .jpg
Товарный знак на водогрейные котлы HEATEXPERT

Отзывы о продукции

Отзыва о товаре пока нет, будьте первыми!

Котлы на древесных отходах 400 кВт используются предприятиями деревообработки, лесопилками, пилорамами, производителями мебели. Данные модели котлов могут сжигать сырые и влажные древесные отходы различной фракции от опилок, стружки и щепы, до больших поленьев.

Смотреть видеообзор на
Подобрать котел по мощности
Подберите необходимую мощность котла для вашего объекта
Тип здания
Регион
Населенный пункт
Вид топлива
Наружный объем здания (м3)
Отапливаемый подвал

Как подобрать мощность котла для вашего объекта

Подобрать мощность котла по площади важно учитывая не только площадь и объем здания, но и тип зданий и климатические данные региона.

На нашем сайте калькулятор расчета мощности котла учитывает тепло, требуемое на возмещение тепловых потерь через строительные конструкции и потери, вызываемые инфильтрацией (проникновением) наружного воздуха, через их неплотности и периодически открываемые двери.

Наружный строительный объем здания должен определяться умножением площади горизонтального сечения, взятого по внешнему обводу здания на уровне первого этажа на полную высоту здания, измеренную для панельных зданий: от уровня чистого пола (нулевой отметки) до верхней плоскости теплоизоляционного слоя чердачного покрытия, для остальных строений от уровня земли.

Расчетная температура воздуха в отапливаемых зданий принимается в зависимости от типа и назначения здания:

  • Гостиница, общежитие, административное здание, жилые дома + 20 °С;
  • Детские сады, ясли, поликлиники, амбулатории, диспансеры, больницы + 22 °С;
  • Высшие и средние специальные учебные заведения, общеобразовательные школы, школы интернаты, лаборатории, предприятия общественного питания, клубы, дома культуры + 16 °С;
  • Театры, магазины, пожарные депо + 15 °С;
  • Кинотеатры + 14 °С;
  • Гаражи + 10 °С;
  • Бани + 25 °С.

В случае если требуется отопление различных по типу зданий, теплопотребление каждого считается отдельно, полученные значения складываются и подобрать мощность котла нужно в соответствии с общей суммарной мощностью каждого отдельно стоящего задания.

Климатические условия вашего региона принимаются в соответствии с СП 131.13330 Строительная климатология. Данные по всем регионам России занесены в наш калькулятор расчета мощности котла.

Подобрать мощность котла по площади с учетом потребностей объекта в тепле на вентиляцию и горячую воду возможно только с более детальным расчетом. Его вы можете заказать в отделе сбыта котельного завода отправив заявку на электронный адрес sb@kvzr.ru или позвонив по телефонам (38-52) 29-97-41, 29-97-42.

Вопрос-ответ

  • Технические
    характеристики
  • Описание
    товара
  • Комплект
    поставки
  • Дополнительно
    потребуется
  • Подключение и
    монтаж
  • Сертификаты и
    гарантии
  • Отзывы о
    продукции
  • Видео
    обзор
  • Подбор
    котла
Документы завода
  • Сертификаты завода
  • Членство в СРО
  • Аттестованная технология сварки
  • Патенты на котельное оборудование
  • Товарные знаки
Смотреть все документы
Сертификат на водогрейные котлы на твердом и жидком топливе
Сертификат на водогрейные котлы на газе и жидком топливе
Сертификат на котлы отопительные паровые КП
Сертификат на топки
Сертификат на щиты управления
Сертификат на скиповые подъемники
Сертификат на золоуловители (циклоны)
Сертификат на конвейеры скребковые
Сертификат на дробилки
Сертификат на клапаны предохранительные
Сертификат на бункер-накопитель механизированный
Сертификат на автоматику газовых горелок
Сертификат о происхождении товара форма СТ-1
Членство в СРО
Членство в СРО
Аттестованная технология сварки
Свидетельство аттестованной технологии сварки
Патент на отопительный котел
Патент на водогрейный котел
Патент на топку водогрейного котла
Патент на водогрейный газовый котел
Патент на водогрейный котел
Патент на топочное устройство твердотопливного котла
Патент на водогрейный котел
HEATEXPERT товарный знак
KVZR товарный знак
STEAMEXPERT товарный знак
Другая похожая продукция
Котел 0.4 МВт газовый
Вид топкиГазовая горелка
Максимальная тепловая мощность, кВт400
ТопливоГаз
Отапливаемая площадь, м²3000-4300
428 000 р. Цена с НДС
Котел 400 кВт на дровах
Вид топкиКолосники, ОУР
Максимальная тепловая мощность, кВт400
ТопливоДрова
Отапливаемая площадь, м²3000-4300
504 000 р. Цена с НДС
Котел 400 кВт без дымососа
Вид топкиКолосники
Максимальная тепловая мощность, кВт400
ТопливоУголь
Отапливаемая площадь, м²3000-4300
553 000 р. Цена с НДС
Котел 400 кВт угольный
Вид топкиРучная, Колосники
Максимальная тепловая мощность, кВт400
ТопливоТвердое, Уголь
Отапливаемая площадь, м²3000-4300
521 000 р. Цена с НДС
Пеллетный котел 0.4 МВт
Лизинг
Вид топкиРетортная, Автоматическая
Максимальная тепловая мощность, кВт400
ТопливоПеллеты
Отапливаемая площадь, м²3000-4300
1 197 000 р. Цена с НДС
Котел 0.4 МВт дизельный
Вид топкиДизельная горелка
Максимальная тепловая мощность, кВт400
ТопливоДизель
Отапливаемая площадь, м²3000-4300
428 000 р. Цена с НДС
Котел на древесных отходах
Вид топкиРучная, Подовая
Максимальная тепловая мощность, кВт350
ТопливоТвердое, Дрова, Древесные отходы естественной влажности
Отапливаемая площадь, м²2600-3900
550 000 р. Цена с НДС
Котел на древесных отходах
Лизинг
Вид топкиРучная, Подовая
Максимальная тепловая мощность, кВт450
ТопливоТвердое, Дрова, Древесные отходы естественной влажности
Отапливаемая площадь, м²3400-4600
656 000 р. Цена с НДС
Вы просматривали эти товары
Котел на древесных отходах
Вид топкиРучная, Подовая
Максимальная тепловая мощность, кВт400
ТопливоТвердое, Дрова, Древесные отходы естественной влажности
Отапливаемая площадь, м²3000-4300
564 000 р. Цена с НДС
Котел 400 кВт на дровах
Вид топкиКолосники, ОУР
Максимальная тепловая мощность, кВт400
ТопливоДрова
Отапливаемая площадь, м²3000-4300
504 000 р. Цена с НДС
Котел КПа 500
Лизинг
Производительность, кг/ч500
ТопливоЖидкое, Дизель
Температура пара, не более, °C170
Давление пара, не более, МПа0.9
880 000 р. Цена с НДС
Котел на древесных отходах
Лизинг
Вид топкиРучная, Подовая
Максимальная тепловая мощность, МВт0.9
ТопливоТвердое, Дрова, Древесные отходы естественной влажности
Отапливаемая площадь, м²6900-9900
877 000 р. Цена с НДС
background